Property Description
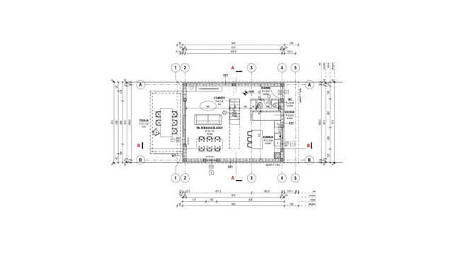
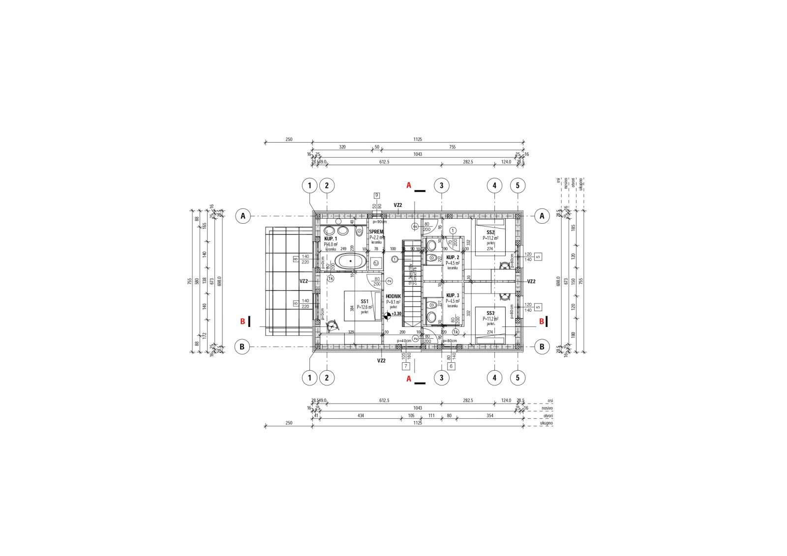
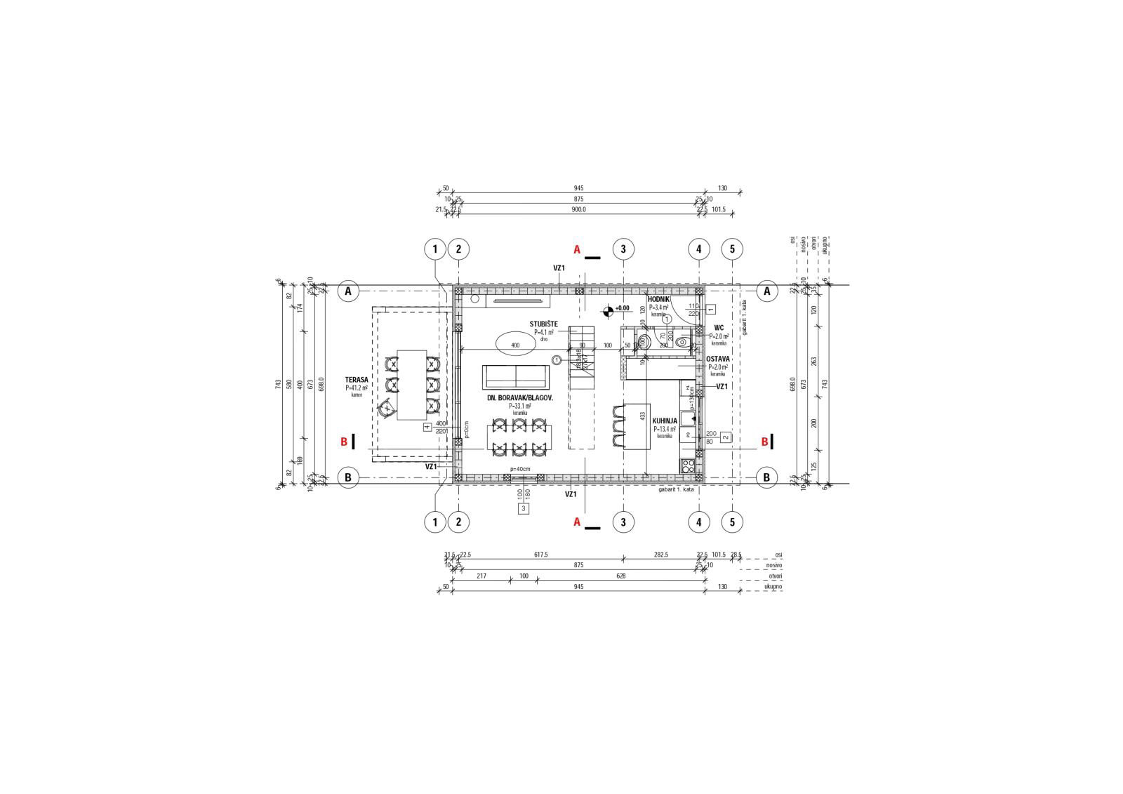
Baugrundstück mit Projekt und Baugenehmigung für ein freistehendes Haus mit Pool und 120 m2 Wohnfläche zu verkaufen. Das Grundstück ist vorbereitet und geräumt, die Nebenkosten sind bezahlt, sodass sofort mit dem Bau begonnen werden kann. Strom- und Wasseranschluss sind vorhanden. Das geplante Haus besteht aus Erdgeschoss und Obergeschoss. Im Erdgeschoss befinden sich ein Wohnzimmer mit Küche und Essbereich, eine Speisekammer, ein Gäste-WC und ein Flur. Vom Wohnzimmer gelangt man auf eine 40 m2 große, überdachte Terrasse, die sich zum Poolbereich hin öffnet. Im Obergeschoss befinden sich drei Schlafzimmer mit jeweils eigenem Bad. Mehrere Olivenbäume auf dem Grundstück unterstreichen das mediterrane Flair und die Privatsphäre. Diese Immobilie bietet eine hervorragende Gelegenheit für Familien oder als Investition im Tourismussektor.
GIZ-618
Interested in this Property?
Please send us a non-binding inquiry for this property and we will answer you as soon as possible. If you are interested in visiting this real estate, please suggest the date and time that would suit you. You can also give us your non-binding offer for this property.

Hrvatski
English
Dansk
Deutsch
Italiano